Hadházy a föld alá is benézett, és újabb szafari túrát hirdetett Pusztaverszájba
3/09/2025 12:20
| Szerző: Klubrádió
És még nincs vége, mert mint írta: a nagy érdeklődésre tekintettel szeptember 27-én újabb, "szafarí túrával egybekötött műemlék megtekintést szervezünk Pusztaverszájba".
Bónuszként hozott néhány újabb fotót a Rezidenciának nevezett volt tisztilakot és a szerényen “Vendégháznak” nevezett kastélyt összekötő folyosó elkészült állapotáról és a “műhelylak” alatti pincerendszer építkezéséről. A tervekből megtudhatjuk végre azt is, hogy mit fognak “termelni” a “félkész mezőgazdasági üzemben” - írja Facebook-bejegyzésében.

Az alaprajzon látható helyiségekhez a képviselő sajátos magyarázokat is fűzött bejegyzésében. Mint írja:
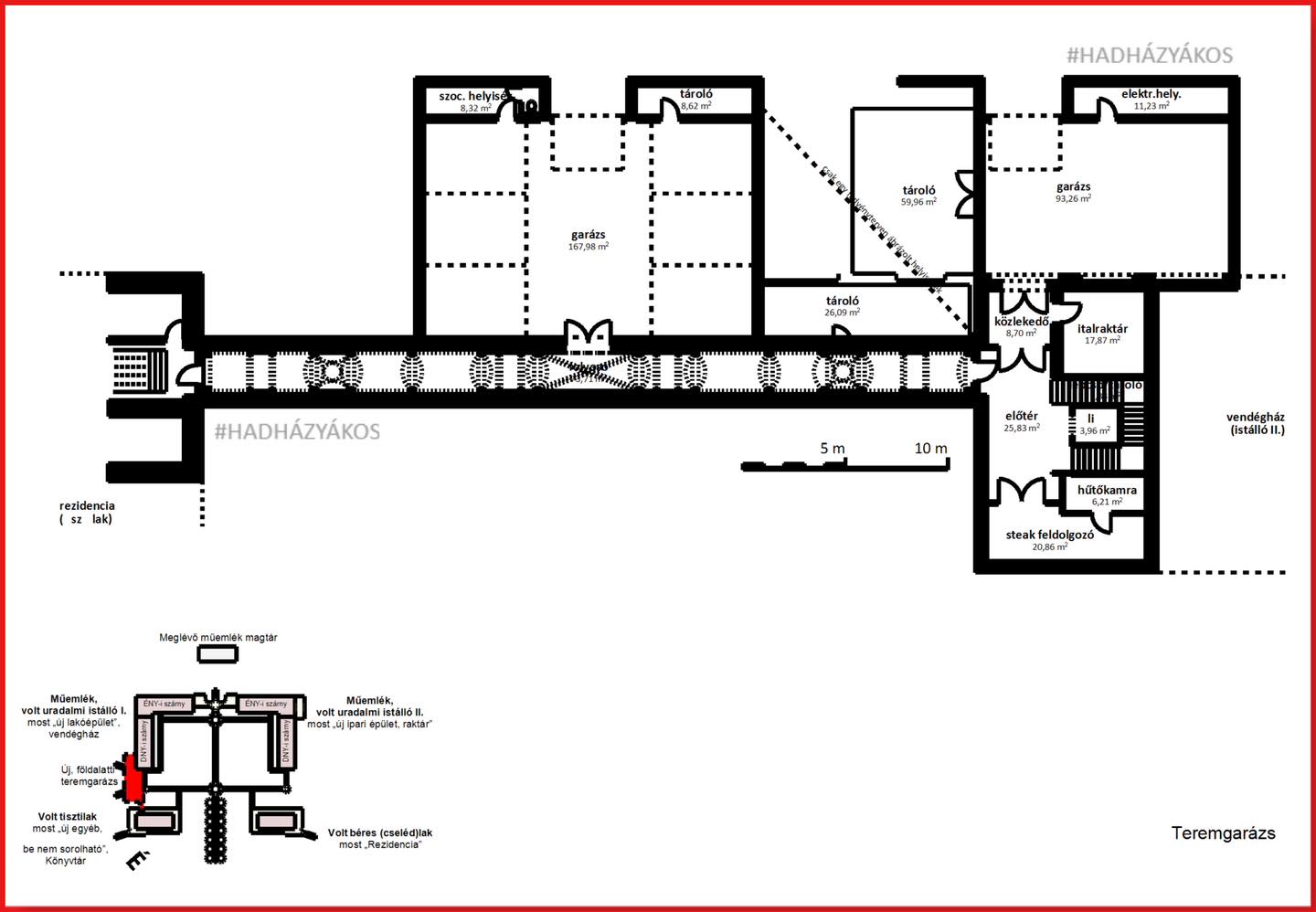
- "a sikeres mezőgazdasághoz elengedhetetlen két földalatti teremgarázs (170+90 négyzetméteres, az egyikbe 6, a másikba két helyet terveztek)
-az egyik garázsnak építettek egy külön vécét is - gondolom a várakozó sofőröknek
-a kedvencem a “vendégház” hatalmas konyhája alatti pincében helyet kapó, 20 négyzetméteres steak feldolgozó (ha valaki tudja, ez mit jelent, írja meg nekem kérem. Csak tippelni tudok, lehet, hogy ott pácolják a miniszterelnöki bendőbe szánt húsokat ?)

- a garázsok mellett van egy föld alatti “raktár” is
-ugyanitt a konyha alatt van egy italraktár és egy hűtőkamra is
-A “rezidenciát”, a “vendégházat” és a garázsokat összekötő folyosó a tervek szerint is 30 centis vasbetonnal védett
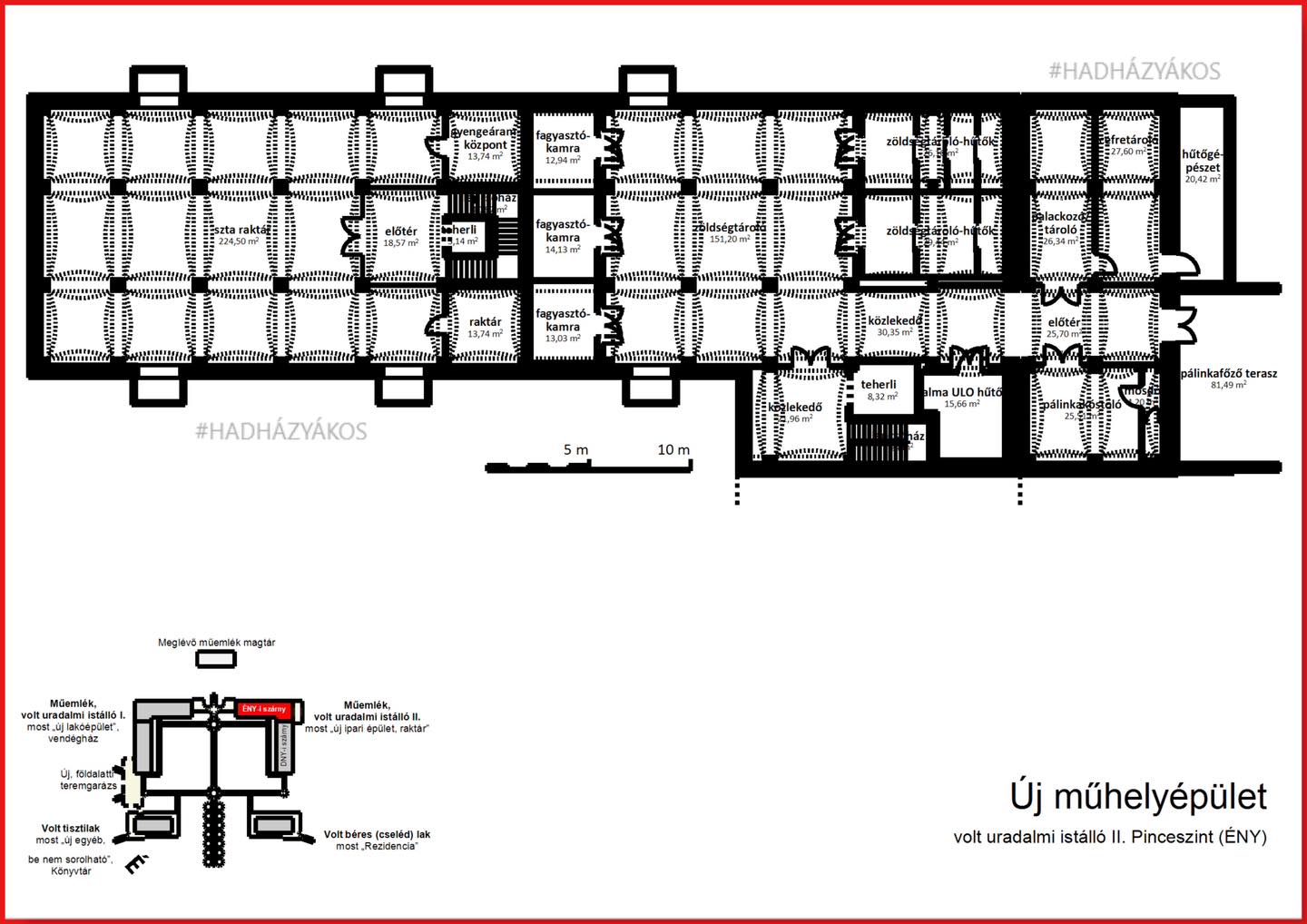
- a “műhelylak” alatti pincerendszerben három(!) , egyenként 14 (!) nm-es fagyasztószoba is van

-a legfontosabb azonban a pálinkafőző terasz és a
-pálinkakóstoló pinceterem (25 nm, természetesen külön mosdóval)
-a pályinkát palackozni is kell, van egy kis palackozó terem is
-van egy 15 nm-es ULO (ultra low oxigene -hogy ne rohadjon a betárolt almájuk) almahűtő és két zöldséghűtő is"
Hadházy Ákos felhívja a figyelmet, hogy ami ugyan nincs a terveken, de minden forrás beszélt róla úgy, hogy látta is, az a páncélterem. A beszámolók szerint három ajtó védi és inkább nevezhető páncélteremnek vagy “pánikszobának”, mint széfnek. Azok, akik a terveket is látták, azt állítják, hogy ez a terem egy olyan külön folyosóról nyílik, amelyik nincsen rajta a tervrajzokon… ezt majd csak a egy rendszerváltás után fogjuk megtudni - mondja a korrupciót régóta üldöző országgyűlési képviselő.
Úgy véli, az eredeti helyszínrajzok a minőségük, feliratozásuk alapján önmagában is meggyőzőek voltak, de az, hogy ott járt és néhány ablakon benézhetett, igazolja a tervek hitelességét. Szintén alátámasztják ezt a már bemutatott, több forrásból kapott képek a bazi nagy kandallós ebédlőről és társalgóról, föld alatti pincéről, folyosóról, valamint a későbbi posztban közzétett képek, videók.
Bejegyzése végén megemlíti, hogy a nagy érdeklődésre tekintettel szeptember 27-én újabb , szafarí túrával egybekötött műemlék megtekintést szervez Pusztaverszájba.

